公寓房(砖头) 出卖 Zamárdi - Balatonhoz közel

出卖 Zamárdi 公寓房(砖头)
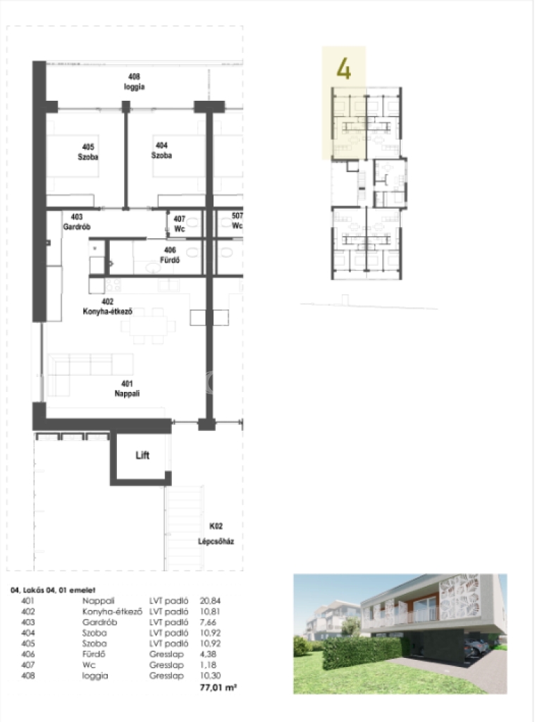
87 m2面积 3 房间
122 670 000 HUF 价格
386485识别码
更多信息

园子 风景

新建 状态

Tégla 架构

10 m2 阳台

热泵 暖气

deplin confort 舒适感

自己的泊车位 停车

几层 1

电梯

Bun 公共交通

美国式厨房

有 有园子

2025 修建年

Prémium lakásokat kínálunk megvételre Zamárdi szívében, a Balaton partjától mindössze 100 m távolságra.

A lakások terasszal, kertkapcsolattal, napozó terasszal, autó beállóval + autótöltési lehetőséggel, tárolóval épülnek.
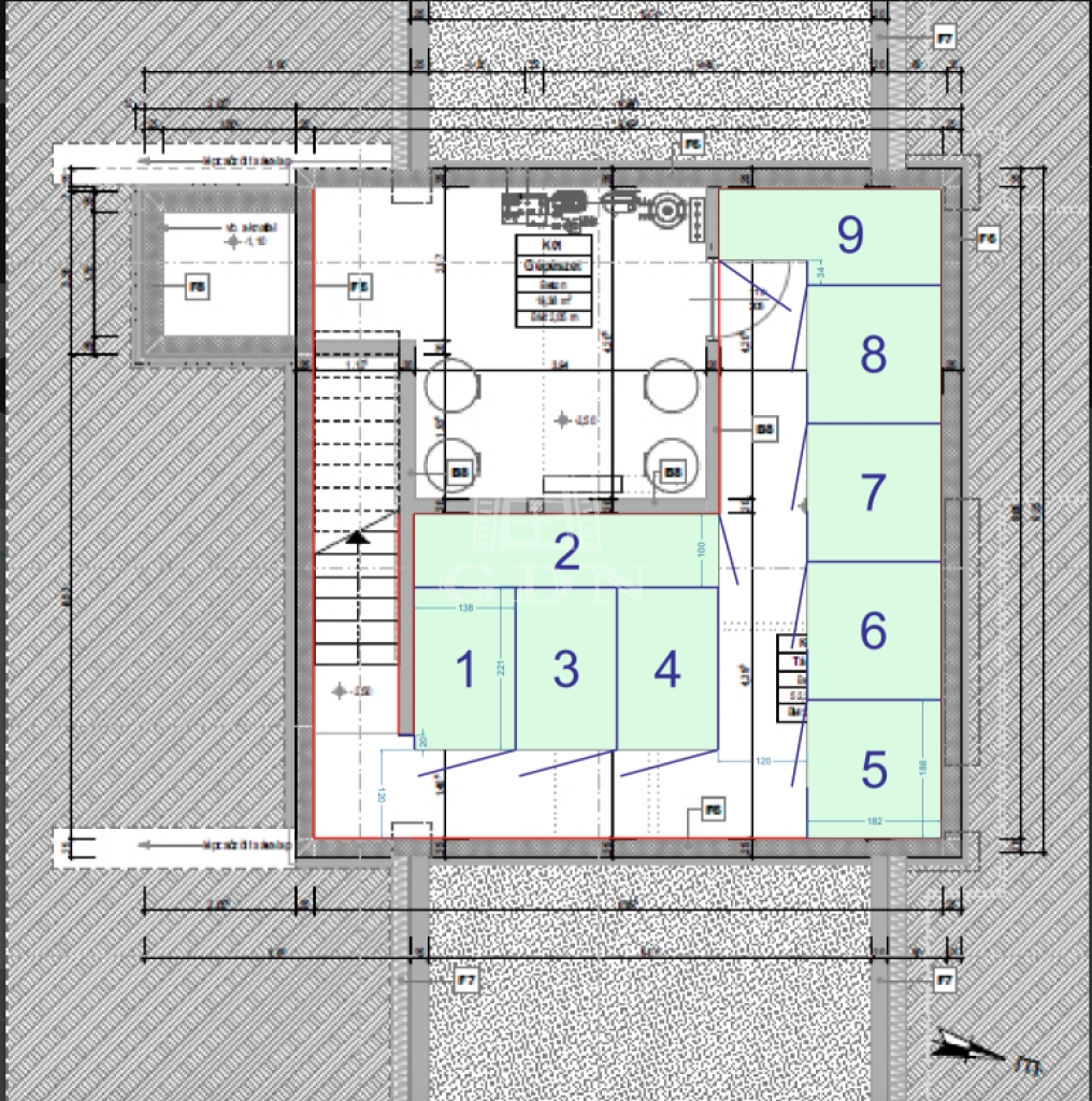
A házban 8 személyes felvonó működik, az épület akadálymentesített.
Az udvar parkosított.
Az ingatlanban 9 db lakás épül.

Emeleti lakások beosztása és vételára:
4. 5. 7. 8.-as lakások:

Lakások nettó alapterülete: 66,71 nm
+ Terasz 10,3 nm
+ Tároló 3,24 nm,
+ Napozó terasz 10,32 nm,
+ Autó beálló 16,6 nm,
--------------------------------
Összesen: 122.670.000.-Ft

Az ingatlan ideális választás mindazok számára, akik modern, energiatakarékos otthont, illetve hosszú távon is értékálló befektetést keresnek a Balaton közvetlen közelében.

Főbb jellemzők:
• Letisztult, modern megjelenés, magas színvonalú kivitelezés
• A+++ energiaosztály – szinte " 0 " rezsiköltség, fenntartható működés
• Már csak 6 apartman, különböző méretekben, átgondolt alaprajzokkal

Műszaki tartalom:
- vasbeton tartószerkezet, külső falak 25 cm ,SILKA tégla+ 30 cm Multipor szigetelés,
- 3 rétegű fehér nyílászáró + elektromos alumínium redőny+
szúnyogháló ( távolról vezérelhető),
- több ponton záródó bejárati ajtók + elegáns kilincs garnitúra,
- minden lakás saját főmérővel rendelkezik 1x 32 A kapacitással,
- TV+ LAN csatlakozó, riasztó előkészítés,
- Napelemekkel működő hőszivattyú rendszere biztosítja a hűtést-fűtést
( fan-coil), melegvíz ellátást, közös területek, felvonó áramellátását,
elektromos autó töltést,
- egyedi hőmennyiségmérők + programozható szobatermosztátok,
- fürdőszobákban + elektromos padlófűtés,
- a lakások előkészítve vannak okosotthon rendszerek teljes skálájára,
- elektromos nagykapu,
- öntöző berendezés,

Birtokba adás: 2 hónap

Irodánk 30 éves szakmai tapasztalattal áll ügyfelei rendelkezésére!

Várom szíves megkeresését!

请给我回电话

相似的房产

Göbölyös Judit

Göbölyös Judit

随时给我们打电话

+36-70-269- 给我看

更多的广告