家庭别墅 出卖 Csopak - Vincellér u. 2.

出卖 Csopak 家庭别墅
240 m2面积 5 房间
109 000 000 HUF 价格
391839识别码
更多信息

1207 m2 地皮

全景 风景

待翻新 状态

Tégla 架构

20 m2 阳台

其他 暖气

Comfort 舒适感

自己的车库 停车

Bun 公共交通

No 美国式厨房

有 有园子

1985 修建年

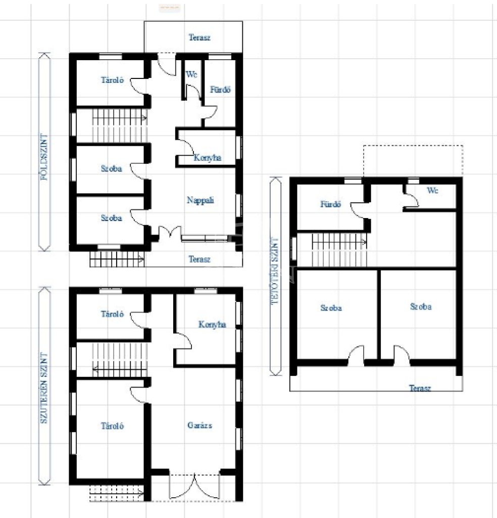
Csopak egyik csendes, nyugodt utcájában egy 1207 m2-es telken lévő BALATONI PANORÁMÁS, 240 m2- es házat kínálom megvételre, a GDN Ingatlanhálózat kínálatából!

- A tágas, világos elrendezésű otthon 5 szobát, 2 konyhát, valamint 2 fürdőszobát WC-vel foglal magában.

- Tárolók is találhatóak az épületben, mely akár irodának vagy szobának is kialakíthatók, így akár 2 különálló generációnak is alkalmas lehet az ingatlan.

- A ház alatt található egy szuterén rész, garázzsal, konyhával és tárolóhelyiséggel, amely tökéletes hobbihelyiségnek, vagy akár kisebb vállalkozás kialakításának.

- A ház fa nyílászárókat kapott, a tető héjazata pala.

- Az ingatlannak 3 kisebb terasza, erkélye van.

- Ugyan a tetőtérbe jutáshoz a lépcső feljáró nincs teljesen befejezve, de megoldható a megtekintés alkalmával.

- Mind a 3 szintről a balatoni panoráma látható, illetve Csopak város szépsége és dombja is.

- A kert fákkal és bokrokkal teli, kisebb tereprendezést igényel ugyan, de nagyon romantikus a hangulata és a 2 különböző panoráma, a kertből, csodálatos élményt nyújt.

- A ház jó állapotú, víz és villany közművel rendelkezik, de hosszabb távon igény szerint - felújítható, így új tulajdonosa a saját ízlése szerint alakíthatja, bővítheti tovább.

- Értéknövelő előnyök:
Pince + szuterén + tetőtér = rengeteg lehetőséget jelent!

Ez az ingatlan ideális választás lehet otthonnak, nyaralónak vagy akár befektetésnek is Csopak egyik legcsendesebb részén.

Ne hagyja ki ezt a remek lehetőséget!

Amennyiben a veszprémi GDN Ingatlaniroda által kínált rengeteg lehetőséget rejtő családi ház, vagy bármely, a kínálatunkban található ingatlan felkeltette érdeklődését, forduljon hozzám bizalommal!

Ingatlanirodánk díjmentes, banksemleges hitelügyintézéssel, illetve ügyvédi tanácsadással is áll Ügyfeleink rendelkezésére!

请给我回电话

Miklósné Csapó Andrea

Miklósné Csapó Andrea

随时给我们打电话

+36-20-397- 给我看

更多的广告