Locuinta (caramida) Vânzare Balatonfenyves - VÍZKÖZELI, KERTKAPCSOLATOS- Fszt./1

Vânzare Balatonfenyves Locuinta (caramida)
61 m2Suprafaţa 2 Camere
93 000 000 HUF Preţ
334294Identificare
Mai multe detalii

Vedere spre grădină Vedere

Proprietate nouă Stare

Caramida Structură

19 m2 Balcon/Terasă

Energie regenerabilă Încălzire

Confort 1 Confort

Garaj/Parcare de vanzare Parcare

Etaj Parter

Inexistent Lift

Bun Transport public

Bucătarie deschisă

Existent Acces la grădină

2022 An construcție

BALATONFENYVESEN, ÚJ ÉPÍTÉSŰ LAKÓPARK, A PARTTÓL 80 MÉTERRE
! ! ! 1-2-3 szobás lakások ! ! !


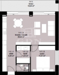
A LAKÁS a földszinten található. 51 nm lakótér, 19 nm terasz, kertkapcsolat. Amerikai konyhás nappali, hálószoba, közlekedő/gardrób, fürdőszoba, WC.
A terasz a nappaliból elérhető. Tágas, világos terek jellemzik.

BALATONFENYVES:
Csendes családias üdülőhely - Ez Balatonfenyves szlogenje. A Balaton dél-nyugati partján, Fonyód és Keszthely között terül el.
Egy igazán nyugodt, csendes, nagyon jó hangulatú település, ősfás környezetben, hangulatos utcákkal.
Fenyves nem lett zsúfolt üdülőváros, bár hatalmas és kényelmes strandjai, pihenőpartjai, egyre bővülő kulturális programkínálata vonzzák a vendégeket. Egy-egy nyári hétvégén húszezer ember is megfordul kétezer fő feletti állandó lakosú településen, ahol a másfél ezret meghaladó fenyőfának köszönhetően, egyedi klíma fogadja a vendéget.

A LAKÓPARK:
A beruházás a vasút és a vízpart közötti területen helyezkedik el, a Balatontól 80 méterre, csendes, öreg fenyőfákkal határolt telken.
A telek területe 3760 nm. Három egyforma ház épül, 7-7 lakással. A házak közt hatalmas zöld parkosított területek a környék hangulatát őrzik. A telek két szélén kerülnek kialakításra az autó beállók, dedikált parkolókkal. A házak aljában tárolók lettek kialakítva, melyek külön megvásárolhatók (2,5M Ft).

MŰSZAKI ADATOK:
A külső FALAZAT 44cm-es Porotherm klíma, égetett kerámia falazóblokkból készül, erre jön még a szigetelés. A lakáselválasztó falak Porotherm 30 AKU Z hanggátló téglából készülnek.
NYÍLÁSZÁRÓK 3 rétegű, hang és hőszigetelő, kívülről színezett, beépített külső árnyékoló rendszerrel.
Az ingatlan rendelkezik vízbekötéssel, szennyvíz és gázbekötéssel.
A MELEGVÍZET lakásonként Ariston VelisEvo100 EU, 100literes vízmelegítő biztosítja.
FŰTÉSE hőszívattyús mennyezet fűtés és HŰTÉS. A fürdőszobában és a WC-ben lesz padló fűtés, ill a fürdőszobákban törölközőszárító radiátorok lesznek beszerelve.
Burkolat és a konyhabútor mintákból választható.

INFRASTRÚKTÚRA:
Gyalogosan érhetőek el a szabad strandok két utcából is. A Nagystrand szintén gyalogos távolságon belül található. A Nagystrandon csúszdák, kölcsönzők, vendéglátóhelyek várják a nyaralókat.
Bevásárlási lehetőség 150m-re. Vasútállomás és Balatonfenyves központja pár perc sétával elérhető.


AZ INGATLANOK ELKÉSZÜLTEK, KULCSRAKÉSZ LAKÁST KAP, AKÁR BERENDEZÉSSEL EGYÜTT IS.


LAKÁSOK MINDEN MÉRETBEN! 1-2-3 szobás

A megadott árak, 27% Áfát tartalmaznak! Vásároljon cégének nyaralót Nettó áron.

RÉSZLETES INFORMÁCIÓKÉRT KERESSEN BIZALOMMAL!






AMENNYIBEN NEM RENDELKEZIK A TELJES VÉTELÁRRAL, segítünk Önnek megtalálni a legjobb megoldást!
BANKFÜGGETLEN hitelcentrumunk minden elérhető bank és hitelintézet ajánlatát versenyezteti az Ön kedvéért, ráadásul díjmentesen. Önnek nincs más dolga, mint elbeszélgetni munkatársunkkal, aki a hallott információk alapján versenyre hívja a bankokat, hogy Ön hosszú távon is a legjobb konstrukciót kaphassa. A legjobb ajánlatokból végül Ön választhatja ki a nyertest. Munkatársaink sokéves szakmai tapasztalattal várják Önt, előre egyeztetve akár a normál munkaidő után is.

Sună-mă

Proprietăți similare

Dora Kriszta

Dora Kriszta
Agent de publicitate

Contactează-mă!

+36-70-370-Arată

Mai multe anunțuri